Rif: 671
TORRE D'ISOLA
PAVIA € 850.000- Villa
- Vendita
- 517 Mq
- 5 Vani
- 3 Camere
- 4 Bagni
- Giardino 1.200 mq
- Garage 60 mq
- EPI: 112,39 kwh/m2 anno
- Classe energetica: D
- Descrizione
- Dettaglio immobile
- Consistenze
- Mappa
- Planimetrie
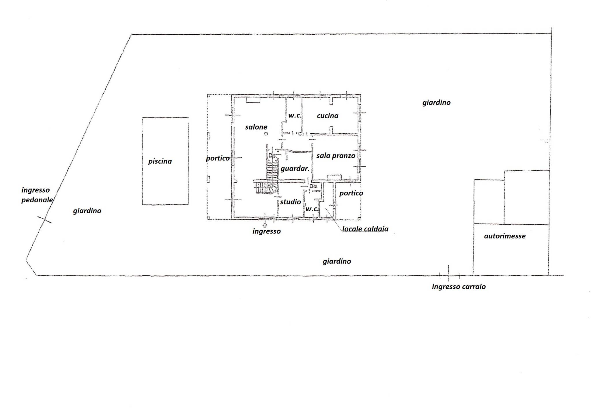
Lo Studio Immobiliare Cantoni propone nel comune di Torre d'Isola, località San Varese ampia villa di recente rinnovamento ed efficientamento composta al piano primo da ingresso, ampio salone con camino, studio/camera ospiti, cucina abitabile, sala da pranzo, doppi servizi e generoso guardaroba; al piano primo la zona notte composta dalla camera padronale di mq. 40 circa (possibilità di ricavare con semplicità due camere matrimoniali) con sala da bagno con vasca idro, due camere, bagno e terzo bagno/lavanderia, completano il piano primo i terrazzi e ripostigli; al piano interrato la cantina. All'esterno il giardino piantumato di mq. 1.200 circa, il porticato fronte piscina 5,5 x 10,5 e l'ampia autorimessa concludono la descrizione della presente proposta. Le finiture sono di pregio, è presente la climatizzazione in tutti i locali, i serramenti esterni sono di tipo blindato, impianto di allarme volumetrico/perimetrale, irrigazione automatica. LIBERA SUBITO. Per ulteriori informazioni e visite si prega di contattare lo Studio dal format del sito oppure al seguente indirizzo e-mail: annunci@immobiliarecantoni.it "INDICANDO UN VOSTRO RECAPITO TELEFONICO".
Contratto Vendita
Rif 671
Prezzo € 850.000
Provincia Pavia
Comune Torre d'Isola
Indirizzo Via Monte Rosa 1">
Vani 5
Camere 3
Bagni 4
Classe energetica
D (DL 90/2013)
EPgl,nren 112,39 kwh/m2 anno
Riscaldamento autonomo
Condizioni abitabile
Anno di costruzione 1970
Arredato si
Cucina abitabile
| Descrizione | Superficie | Sup. comm. |
|---|---|---|
| Principali | ||
| Immobile - piano terra | 210 Mq | 210 Mqc |
| Immobile - 1° piano | 135 Mq | 135 Mqc |
| Terrazza - 1° piano | 36 Mq | 11 Mqc |
| Box/Garage - piano terra | 60 Mq | 30 Mqc |
| Altro - piano terra | 56 Mq | 11 Mqc |
| Giardino/Resede | 1.200 Mq | 120 Mqc |
| Totale | 517 Mqc | |
Zoom della mappa
Apri con:
Apple Maps
Google Maps
Waze
Apri la mappa







